Lage und Grundriss

(c) 2026: www.RONDOMONDO.ch

Haus Piz d’Err

Hochparterre

Whg. Schmid

Hochparterre-Wohnung

an der Dischmastrasse 18

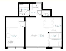
Die attraktive Wohnung liegt im Hochparterre eines Mehrfamilien- hauses neben der Landwasser in Davos Dorf. Grundriss Die gepflegte Wohnung bietet vier Einzelbetten in zwei vom Wohnraum abgetrennten Zimmern (wovon eines abschliessbar mittels Faltwand) .
Busstation, Parsennbahn, Bünda, Langlauf-Loipe und Einkaufsmöglichkeiten sind in wenigen Gehminuten erreichbar.

Lage und Grundriss

(c) 2026: www.RONDOMONDO.ch

Haus Piz d’Err

Hochparterre

Whg. Schmid

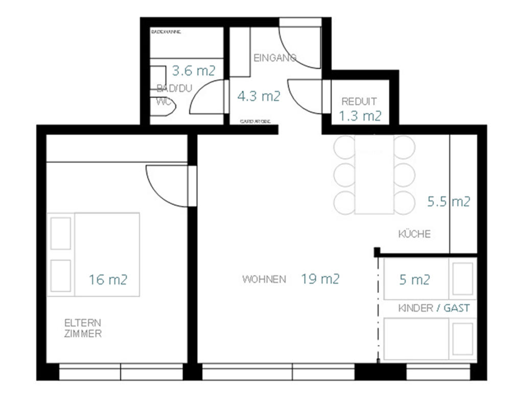
Busstation, Parsennbahn, Bünda, Langlauf-Loipe und Einkaufsmöglichkeiten sind in wenigen Gehminuten erreichbar.

Hochparterre-Wohnung an der Dischmastrasse 18

Die attraktive Wohnung liegt im Hochparterre eines Mehrfamilienhauses neben der Landwasser in Davos Dorf. Grundriss Die gepflegte Wohnung bietet vier Einzelbetten in zwei vom Wohnraum abgetrennten Zimmern (wovon eines abschliessbar mittels Faltwand) .